AI-Konvertering: Fra Billede til Redigerbar Plantegning
Den hurtigste måde at komme i gang på.
Upload din plantegning, og få en digital version, du kan redigere med det samme. AI kortlægger rummene for dig, så du slipper for at tegne alt manuelt.


Hurtig konvertering
Konverterer din plantegning på under fem sekunder

Trænet til nøjagtighed
AI Convert er trænet på mere end 50.000 ægte plantegninger

Ubegrænset redigering
Tilføj møbler, materialer og mål, og gør tegningen præcis som du har brug for
Sådan fungerer det
1. Konverter
Upload din plantegning som en JPG, PNG eller PDF, og lad AI kortlægge vægge, døre og vinduer på få sekunder.
2. Rediger
Åbn den konverterede plantegning i RoomSketcher appen, og lav de ændringer, du har brug for.
3. Del
Download og del 2D og 3D plantegninger med kunder og håndværkere på en enkel måde.
Dette kan du gøre med din digitale plan

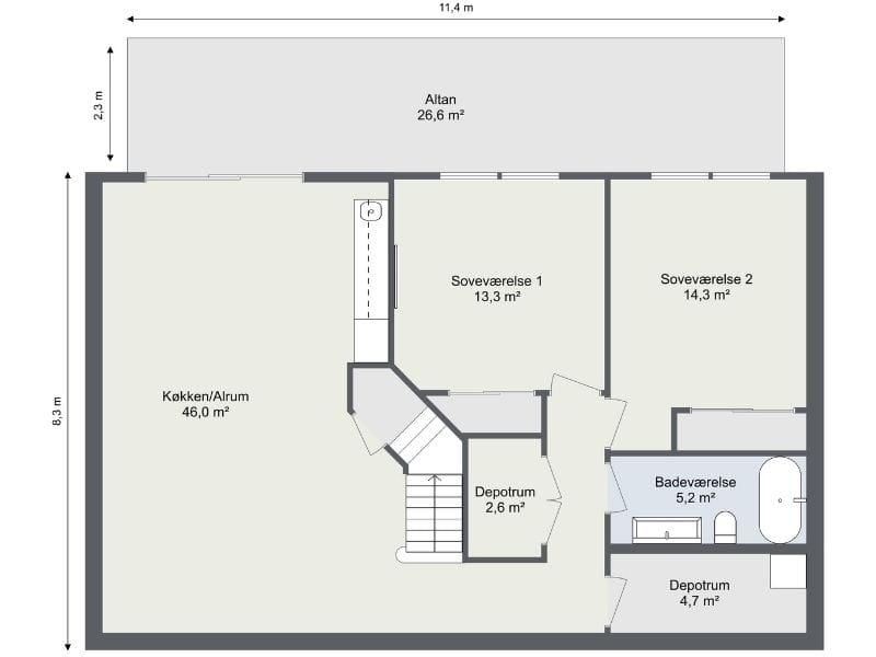
2D Plantegninger
Gør din konverterede plantegning om til en professionel 2D Plantegning, som er let at arbejde med.
Tilføj mål, rummets navn og andre detaljer, du har brug for.
Hvis du har Pro eller Team, kan du tilpasse udseendet, så alt følger din branding. Brug egne farver, eller hold det enkelt i sort og hvid.
3D Plantegninger
Gør din 2D-plan til 3D med et klik. RoomSketchers 3D Plantegninger giver et klart overblik over rum og layout, komplet med teksturer og detaljer.
Det er en enkel måde at vise følelsen af en bolig på og giver et langt bedre indtryk af hvordan projektet faktisk kan blive.

3D Visualiseringer
Se dit projekt fra alle vinkler med 3D Billeder, 360 Visninger og Live 3D.
De giver en helt anden rumfornemmelse end en almindelig plantegning og gør det let at vise materialer, farver og overflader på en tydelig måde.
Hold styr på dine plantegninger
Lav gamle mapper og papirer om til et enkelt digitalt bibliotek.
I stedet for at lede gennem arkivskabe eller tilfældige filer, kan du konvertere dine tegninger til digitale versioner, som er lette at finde, opdatere og dele.
Med RoomSketcher holder du alt samlet ét sted – ryddeligt, overskueligt og klar til brug, når du har brug for det.


Har du brug for hjælp til at komme i gang?
Hvis du er i tvivl om noget, kan du altid kontakte vores venlige kundeservice.
Vi har også gratis webinarer, et stort hjælpecenter og mange videoer, der viser dig, hvordan alt fungerer.
For teams og virksomheder, der har brug for lidt ekstra støtte, tilbyder vi 1:1-træning.
Ofte stillede spørgsmål
Nej, men du kan uploade tegningen i RoomSketcher appen og nemt tegne oven på den.
Ikke endnu, men vi arbejder på det!
Ikke noget problem! Tag et billede af plantegningen og upload det. AI-Konvertering læser tydelige fotos lige så godt som digitale filer.
Den første konvertering er gratis. Derefter koster hver konvertering 5 Credits.
Ja! Du får en forhåndsvisning af den konverterede plan først. Du bruger kun Credits, hvis du vælger at gemme den.
AI-Konvertering er tilgængelig for alle med en RoomSketcher-konto, uanset om du har Free, Pro eller Team.
Hvis du ofte konverterer plantegninger eller arbejder med mange projekter, er Team det bedste valg. Med Team får du flere månedlige Credits og andre fordele, der gør det nemmere at håndtere et større volumen.